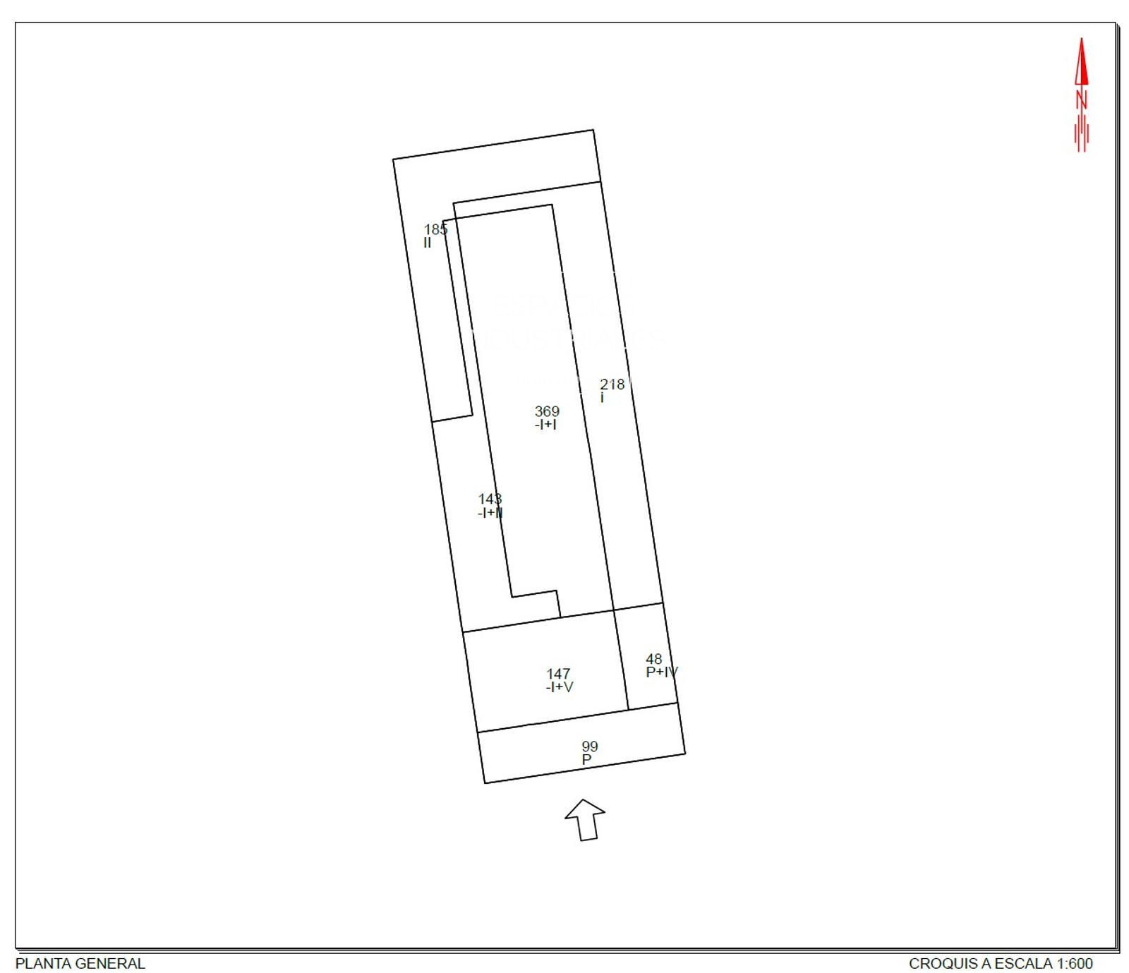
Presentamos una propiedad inmobiliaria prime en el Polígono de Las Rejas, Madrid. Este complejo adosado de 2.817 m² totales no es solo una sede corporativa de lujo y alto standing, sino que se ofrece actualmente en rentabilidad, generando un 5% garantizado, lo que lo convierte en un activo de inversión estable y productivo desde el primer día.
La nave sobresale por su Eficiencia Energética, habiendo sido reformada con 58 paneles solares (30 KW/h) y una nueva instalación eléctrica libre de halógenos con un proyecto de 150 KW. La Logística se gestiona a través de los 1.000 m² de nave industrial (50 x 20 m; 6m de altura) con acceso rasante a nivel de calle, complementada por un anexo de 300 m² de oficinas en la misma área. La Seguridad y PCI están garantizadas con una estructura dotada de puertas ignífugas, BIEs y un sistema de alarma/videocámaras, contando con una instalación adaptada de Protección Contra Incendios.
El Edificio Corporativo de Alto Nivel adosado a la nave consta de 5 plantas de 200 m² cada una, ofreciendo un entorno de trabajo ejecutivo con máxima Accesibilidad Total, ya que está equipado con ascensor y totalmente adaptado para minusválidos. El Confort y la Conectividad están asegurados con calefacción por gasoil y una red centralizada de teléfono y ordenadores en todas las áreas. Finalmente, el Parking Exclusivo y la Fachada incluyen un garaje subterráneo de 600 m² con 20 plazas —un valor añadido crucial— y 20 metros de fachada particular con espacio adicional para aparcamiento exterior.
Ubicado en el Polígono de Las Rejas, con conexiones directas a la M-40, A-2 y al Aeropuerto Adolfo Suárez Madrid-Barajas, garantizando la continua demanda y revalorización del inmueble.
Este complejo reformado, sostenible y con una rentabilidad activa del 5% es el activo industrial-corporativo definitivo para inversores de primer nivel en Madrid Capital.
¡No pierdas esta oportunidad! Si buscas una nave industrial en un entorno seguro y con excelentes comunicaciones, esta es tu opción ideal.
Más información de esta y otras propiedades en nuestra web: www.espaciosindustriales.es
Impuestos y gastos NO INCLUIDOS: ITP o IVA, notaría, registro, gestoría, tasación, etc. Los datos específicos sobre la finca publicada, pueden ser aproximados, por ello no son vinculantes ni contractuales, se muestran a título informativo.